Work
Services
US
Contact
Work
Services
US
Contact
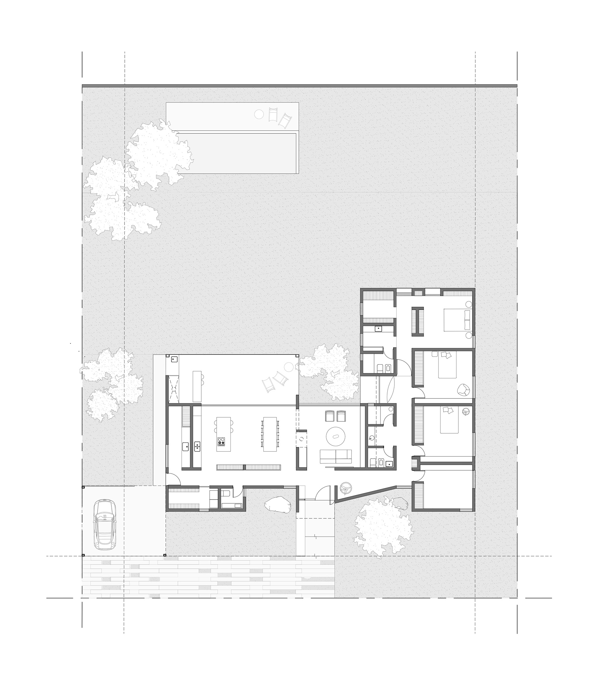
Melga
Architecture / EMU
Use: Residential Location: San Juan, Argentina Date: 2021 — 2023
You may also like
Architecture / Agua Clara
2025
Product Design / Ring-e
2024
Architecture / Cultural Winery
2024
Branding & visual ID / MELGA
2024
Alternative Project / La Piedra
2024
Architecture / BSC
2026
Architecture / Quincho IDA
2023
↑
Back to Top